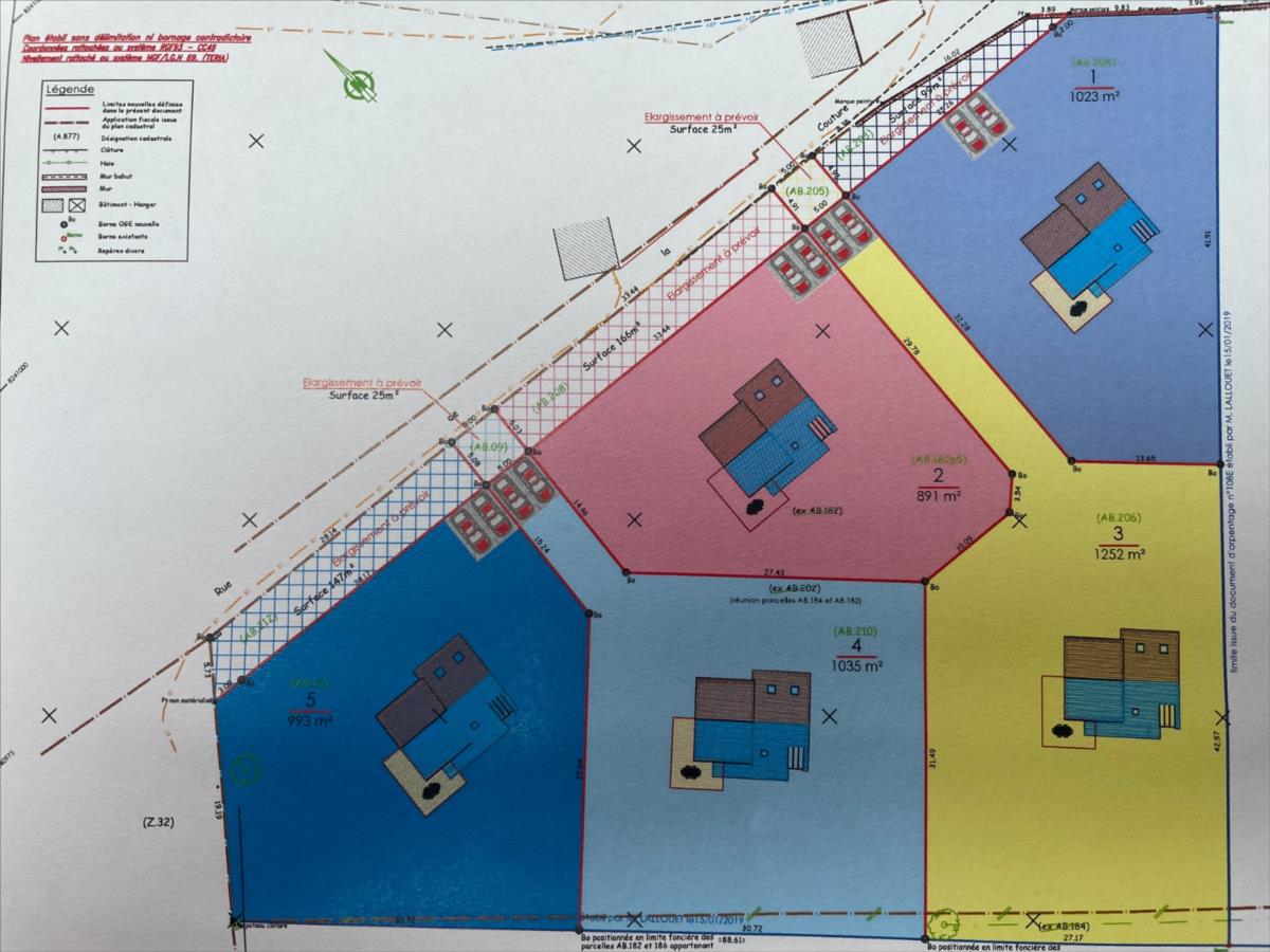
TERRAIN CONTRUCTIBLE VIABLISÉ 891 m² MER 4KMS
- 106 000€ HNI*
CAEN NORD OUEST facile d’accès à BAYEUX situé à SAINTE CROIX SUR MER – 14880. Terrain constructible de 891 m². Viabilisé : eau, électricité, tout à l’égout.A cloturer. Commune equipée de la fibre optique. Terrain à bâtir de 891m2, auquel est attaché en plus une parcelle
d’accès de 166m2, inconstructible, qui fera potentiellement l’objet, à terme,
d’une rétrocession à la commune.Commune equipée de la fibre optique. Rue de la couture et Route de ver sur mer. Parcelle 2 sur le plan. Coordonnées GPS : 49°18’54.7’N 0°30’51.9’W Situé en zone 1 AU du PLU section AB de Sainte Croix sur mer. 4 kms de la plage et de la mer, Ligne de bus 103 CAEN. 4.3 kms CREULY, 4.8 kms COURSEULLES SUR MER. Les informations sur les risques auxquels ce bien est exposé sont disponibles sur le site Géorisques : w. georisques. gouv. fr
Référence interne : 30299023
D&ASSOCIÉS NOTAIRES CAEN CHATEAU
12 rue du tour de terre
14000 CAEN
Tél. 02.31.27.93.92
jean-luc.martin@d-associes.fr
Ces biens pourraient aussi vous interesser ...
* HNI : Honoraires de Négociation Inclus



